AUSLAUFMODELL
Wir empfehlen für Neukonstruktionen die technisch optimierte e-ketten®-Serie E2.38 aus dem igus® E2.1 Programm.
sicherer Halt der Öffnungsstege, verbessertes Öffnungsprinzip, größere freitragende Längen, gleiche Abmessungen
Serie 27 ist in begrenzter Stückzahl ab Lager lieferbar.
Bei Fragen dazu wenden Sie sich bitte an Ihren igus®-Ansprechpartner. Vielen Dank für Ihr Verständnis
zur Serie E2.38
Serie 27 - Kette, im Außenradius aufklappbar
1.Große Bolzen - lange Lebensdauer
2.Leitungsschonender Innenraum
3.Schmutzabweisend
4.Günstiges Verhältnis Innenmaß/Außenmaß
5.Zugentlastung integrierbar
6.Doppeltes Anschlagsystem
7.Serie 27i (innen aufklappbar), 27 (außen aufklappbar)
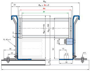
Lieferbare Innenbreiten Bi: 50 bis 200 mm
Lieferbare Biegeradien R: 63 bis 250 mm
Teilung: 56 mm je Glied = 18 Glieder/m
A = Mitnehmer, B = Festpunkt
Teilung: 56 mm
Glieder pro m: 18
Verfahrweg: S
Kettenlänge = S/2 + K
K = Zugschlag für Biegeradius bei der e-ketten Längenberechnung in mm
Hinweis: Kettenlänge für die Kettenglieder wird aufgerundet, da es keine halben Glieder gibt.