Wir empfehlen für Neukonstruktionen die technisch optimierte e-ketten®-Serie E4.32 aus dem igus® E4.1 Baukasten.
Bei Fragen dazu wenden Sie sich bitte an Ihren igus®-Ansprechpartner. Vielen Dank für Ihr Verständnis
zur Serie E4.32
Serie 280 - Kette, vollstegig
1. Stege bei e-kette® beidseitig herausnehmbar
2. Variantenreiche Innenaufteilung
3. Geschlossene und offene Bereiche kombinierbar
4. Anschlag mit "Bremse" zur Geräuschreduzierung
5. Optimierte Gleitflächen
6. Breite Kunststoffstege - kabelfreundlich
7. Deckel bei E-Rohr schwenkbar
und herausnehmbar
8. KMA-Anschlusselemente mit
"Rundum" Befestigungsmöglichkeit
9. Anschlusselemente starr oder pendelnd lieferbar
10. Option - integrierte C-Profil-Zugentlastung mit Chainfix-Clips oder Kettenkämmen
11. Alternativ lieferbar mit rückwärtigen/ beidseitigen Biegeradien RBR!
E4/00-NC = e-kette auch ohne Vorspannung erhältlich
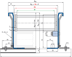
Lieferbare Innenbreiten Bi: 50 bis 400 mm
Lieferbare Biegeradien R: 63 bis 300 mm
Teilung: 56 mm / Glied = 18 Glieder / m
A=Mitnehmer, B=Festpunkt
Teilung: 56 mm
Glieder pro m: 18
Verfahrweg: S
Kettenlänge = S/2 + K
K = Zugschlag für Biegeradius bei der e-ketten Längenberechnung in mm
Hinweis: Kettenlänge für die Kettenglieder wird aufgerundet, da es keine halben Glieder gibt.