Wir empfehlen für Neukonstruktionen die technisch optimierte e-ketten®-Serie E4.56 aus dem igus® E4.1 Baukasten.
Bei Fragen dazu wenden Sie sich bitte an Ihren igus®-Ansprechpartner. Vielen Dank für Ihr Verständnis
zur Serie E4.56
Serie 400 - Kette, vollstegig
1. Stege bei e-kette® beidseitig herausnehmbar
2. Geschlossene und offene Bereiche kombinierbar
3. Variantenreiche Innenaufteilung
4. Deckel bei E-Rohr schwenkbar
und herausnehmbar
5. Anschlag mit "Bremse" zur Geräuschreduzierung
6. Breite Kunststoffstege
7. Optimierte Gleitflächen - seitliche Verschleißzulage
8. KMA-Anschlusselemente mit
"Rundum" Befestigungsmöglichkeit
9. Anschlusselemente starr oder pendelnd lieferbar
10. Zugentlastung im Anschlusselement integrierbar
11. Schmutzabweisende Außenkontur
12. Alternativ lieferbar mit rückwärtigen/ beidseitigen Biegeradien RBR
E4/00-NC = e-kette auch ohne Vorspannung erhältlich
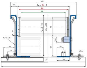
Lieferbare Innenbreiten Bi: 50 bis 600 mm
Lieferbare Biegeradien R: 135 bis 500 mm
Teilung: 91 mm je Glied = 11 Glieder/m
A=Mitnehmer, B=Festpunkt
Teilung: 91 mm pro Glied
Glieder pro m: 11
Verfahrweg: S
Kettenlänge = S/2 + K
K = Zugschlag für Biegeradius bei der e-ketten Längenberechnung in mm
Hinweis: Kettenlänge für die Kettenglieder wird aufgerundet, da es keine halben Glieder gibt.