Qui è possibile configurare individualmente il sistema di catene portacavi. Tutti gli inserimenti e le modifiche vengono aggiunti all'elenco dei pezzi, che si trova a fine pagina.
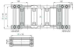
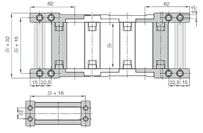
Serie E4.42AG, catene portacavi con traversini su ogni maglia
1. Funzionamento ottimale grazie alla struttura a maglia interna/esterna
2. Funzionamento a bassa rumorosità grazie al freno integrato nel sistema di fermi radiali
3. Robustezza e capacità di carico massime in presenza di forze di taglio grazie alla struttura degli inserti laterali
4. Resistenza alla trazione maggiorata del 15% (rispetto alla serie precedente E4), distanza non supportata più lunga grazie al miglioramento del sistema di fermi e ai fermi radiali verticali
5. Traversino disponibile per montaggio/smontaggio più rapidi - 385.X. Q
6. Gamma di separatori orizzontali con un'ampia scelta di opzioni - disponibile un nuovo separatore interno per un più veloce inserimento dei cavi - T423(A)
7. Versione NC "senza precarico" semplicemente ruotando le maglie esterne senza rilavorazione
8. Traversini nelle catene portacavi rimovibili da entrambi i lati
9. Coperchi a cerniera rimovibili con apertura a scatto - catena chiusa
10. Traversini in plastica arrotondati e ampi - facile inserimento dei cavi
Larghezze interne disponibili Bi: da 25 a 400 mm
Raggi di curvatura R disponibili: da 55 a 350 mm
Passo: 46 mm / maglia = 15 maglie/m