Wir empfehlen für Neukonstruktionen die technisch optimierte e-ketten®-Serie E4.80 aus dem igus® E4.1 Baukasten.
Bei Fragen dazu wenden Sie sich bitte an Ihren igus®-Ansprechpartner. Vielen Dank für Ihr Verständnis
zur Serie E4.80
Serie R9850 - Rohr, geschlossen
1. Hohe Stabilität "auf der Seite" durch Hintergriff
2. Hohe Torsionssteifigkeit
3. Geschlossene und offene Bereiche kombinierbar
4. Deckel bei E-Rohr schwenkbar und herausnehmbar
5. Variantenreiche Innenaufteilung
6. Stege bei e-kette® beidseitig herausnehmbar
7. Seitliche Gleitflächen für Betrieb "auf der Seite"
8. Breite Kunststoffstege - kabelfreundlich
9. KMA-Anschlusselemente mit
"Rundum" Befestigungsmöglichkeit
10. Anschlusselemente mit integrierbarer Zugentlastung
pendelnd oder starr lieferbar
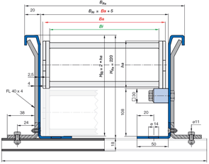
Lieferbare Innenbreiten: 75 bis 462 mm
Lieferbare Biegeradien: 200 bis 1000 mm
Teilung: 91 mm je Glied = 11 Glieder/m
A=Mitnehmer, B=Festpunkt
Teilung: 91 mm pro Glied
Glieder pro m: 11
Verfahrweg: S
Kettenlänge = S/2 + K
K = Zugschlag für Biegeradius bei der e-ketten Längenberechnung in mm
Hinweis: Kettenlänge für die Kettenglieder wird aufgerundet, da es keine halben Glieder gibt.