Change Language :

Kunststoffgerechte Tolerierung von CNC-Bauteilen
Kunststoff hat sein eigenes, charakteristisches Verhalten, welches bei der Zerspanung berücksichtigt werden muss. Unsere Fertigungsstandards gewährleisten eine kunststoffgerechte Bearbeitung Ihrer Dreh- und Frästeile.
Wir empfehlen die Einhaltung folgender Standards (s. Abb. rechts), damit Ihre Bauteile schnellstmöglich gefertigt werden können.
Kunststoffgerechte Tolerierung von CNC-Bauteilen
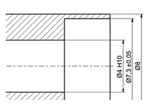
Für Längenmaße werden die Allgemeintoleranzen gemäß ISO 2768 (Grad „mittel“) empfohlen, wie in linker Tabelle dargestellt.
Davon abweichende, engere Toleranzen sind bis zu einem gewissen ISO-Toleranzgrad möglich. Die minimal möglichen sowie empfohlenen Toleranzen sind in rechter Tabelle einsehbar. (Noch engere Toleranzen wären maschinenseitig zwar machbar, aber bei Kunststoff-Bauteilen nicht zeitstabil einhaltbar und somit technisch nicht sinnvoll.)

Unser Whitepaper unterstützt Sie mit den wichtigsten Grundsätzen bei der Konstruktion Ihrer CNC-Bauteile. Wir geben Ihnen 12 hilfreiche Tipps für Ihre Dreh- und Frästeile – so erzielen Sie ein wirtschaftlich und fertigungstechnisch optimales Design.

Sie möchten schnell und einfach Dreh- und Frästeile aus iglidur®
Halbzeugen fertigen lassen und den Preis dafür sofort online berechnen? Dann nutzen Sie jetzt unseren CNC-Service.

Große Materialvielfalt und Materialqualität:
Die große Materialvielfalt unserer iglidur®-Halbzeuge garantiert Ihnen optimale, tribologische Bauteileigenschaften für jede Anwendung.

Hohe Oberflächenqualität:
Verfahrensbedingt erzeugt die CNC-Bearbeitung gute Oberflächen - auch für ihre Gleitflächen benötigen iglidur® Bauteile normalerweise keine spezielle Nachbearbeitung.

Präzise Bauteilmaße mit engen Toleranzen:
Sie erhalten maßhaltige Bauteile mit eng tolerierten Maßen und Passungen. Enge Toleranzbreiten (bis Toleranzgrad 9 gem. DIN ISO 286) sind meistens machbar. Toleranzbreiten von 0,05 mm sind daher kein Problem.

Wirtschaftlich bei kleinen bis mittleren Stückzahlen:
Im zwei- bis vierstelligen Stückzahlbereich ist die CNC-Bearbeitung oftmals das wirtschaftlichste Verfahren, vor allem für großvolumige Teile mit einfacher Geometrie.

Video-Beratung per Microsoft Teams:
Buchen Sie Ihren Termin für eine Video-Beratung per MS Teams hier.
Chat-Service:
Montag – Donnerstag: 8 – 17 Uhr
Freitag: 8 – 16:30 Uhr
Persönlich:
Montag – Donnerstag: 8 – 17 Uhr
Freitag: 8 – 16:30 Uhr